Project Orbit
178 Bed 3 Star Hotel
London
UK
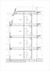
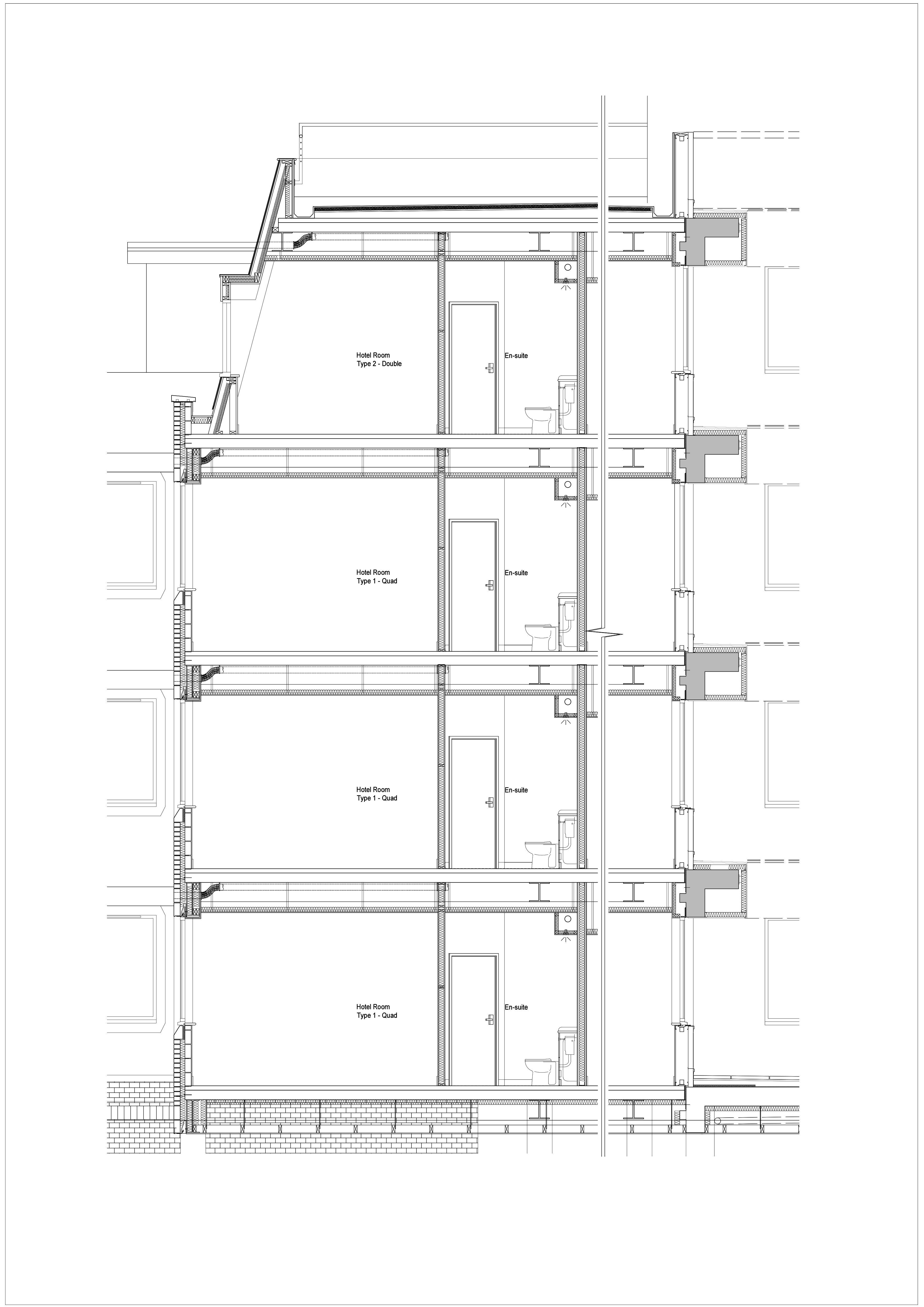
Refurbishment of existing four storey office block to form a new 167 bed Premier Inn Hotel with ground floor restaurant and bar. Works to include 2No. four storey side extensions, mansard roof extension, fifth floor glazed extension and roof top terraces offering spectacular views over London and Wembley stadium.
We collaborated with a London based architects to develop their design from sketch design to completion. Liaising with the planning department and building control officer to achieve building permits, preparation of tender documentation, as well as coordinating with various consultants.
