Project Zues
Luxury Residence
Mumbai
India
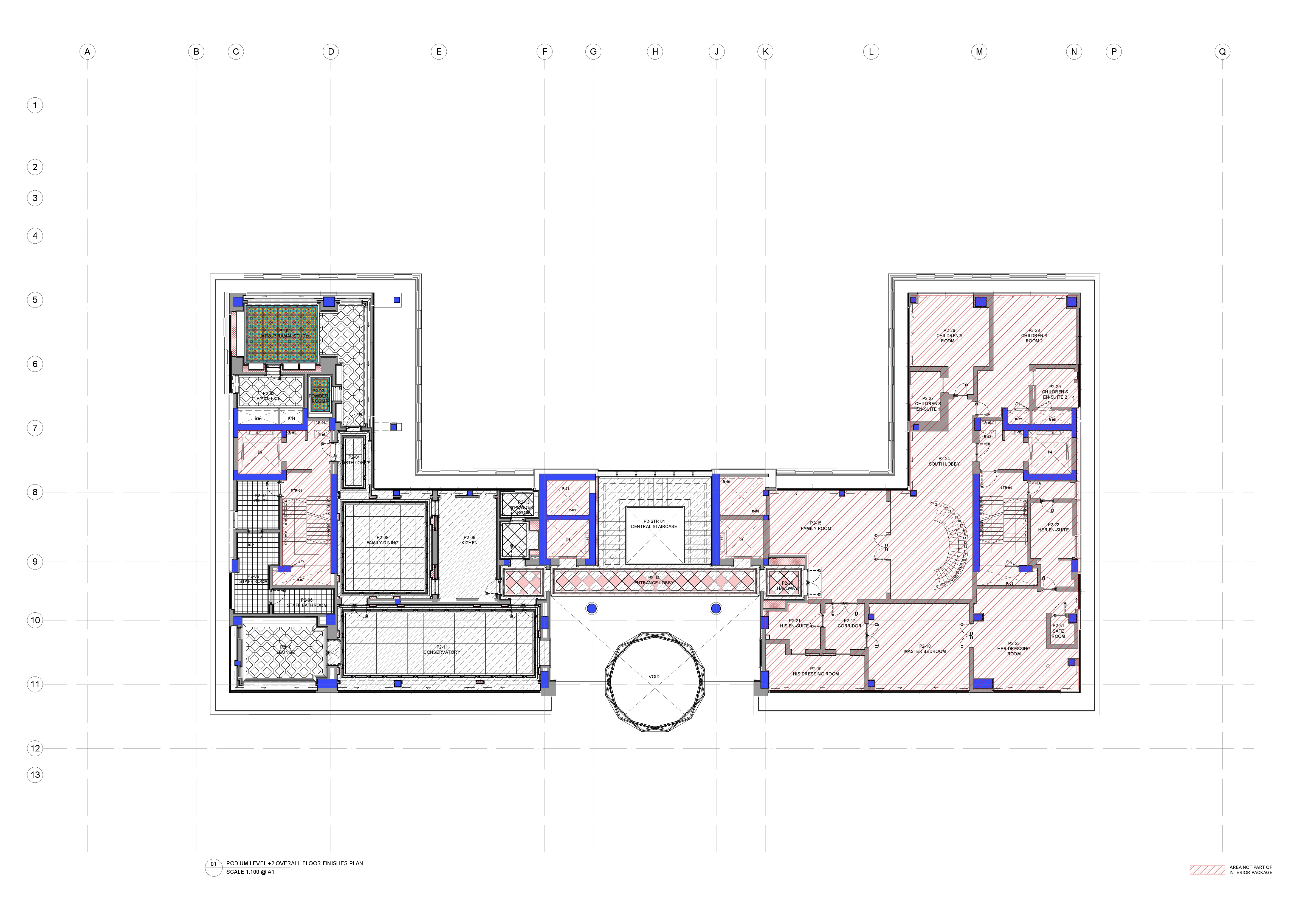
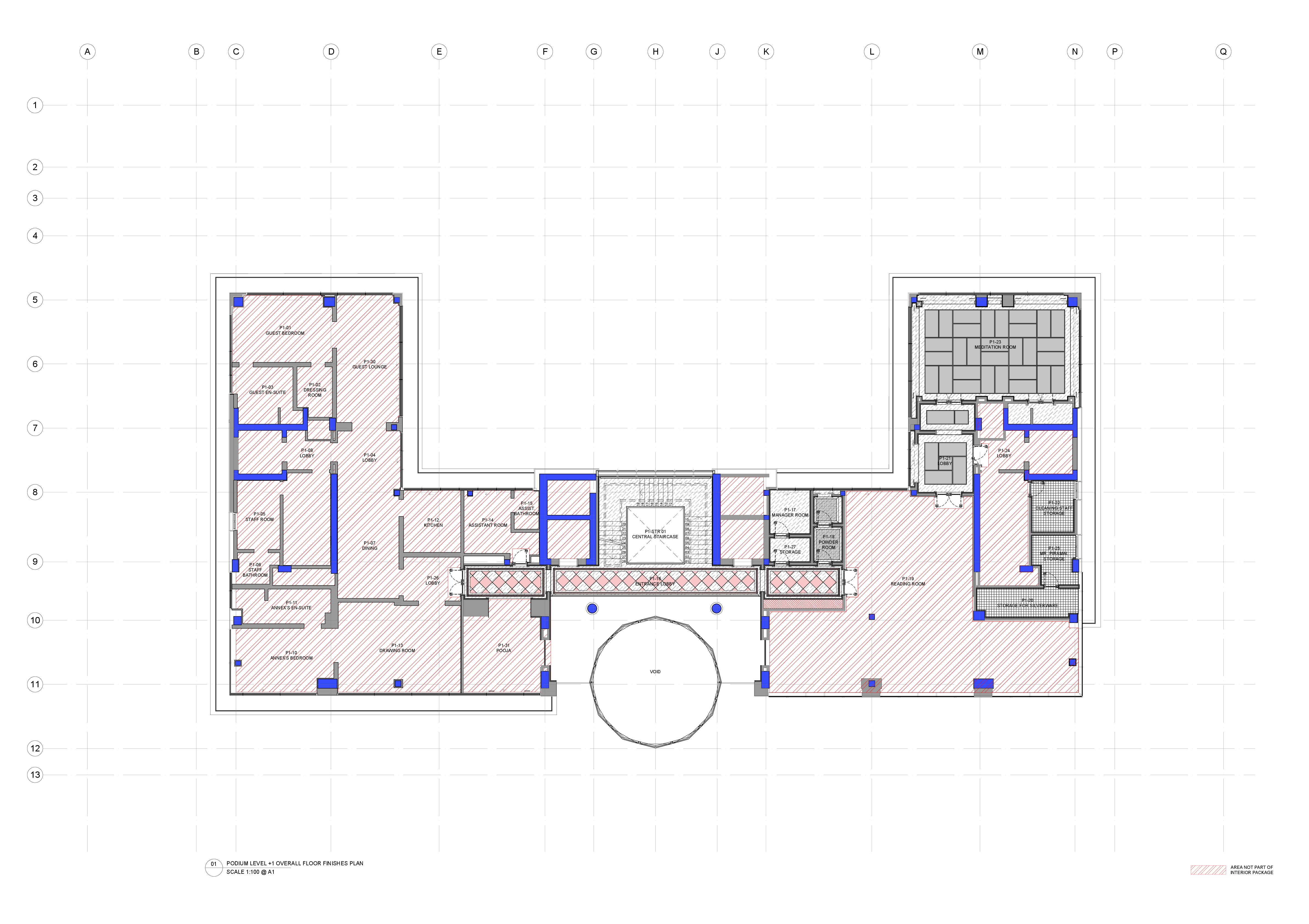
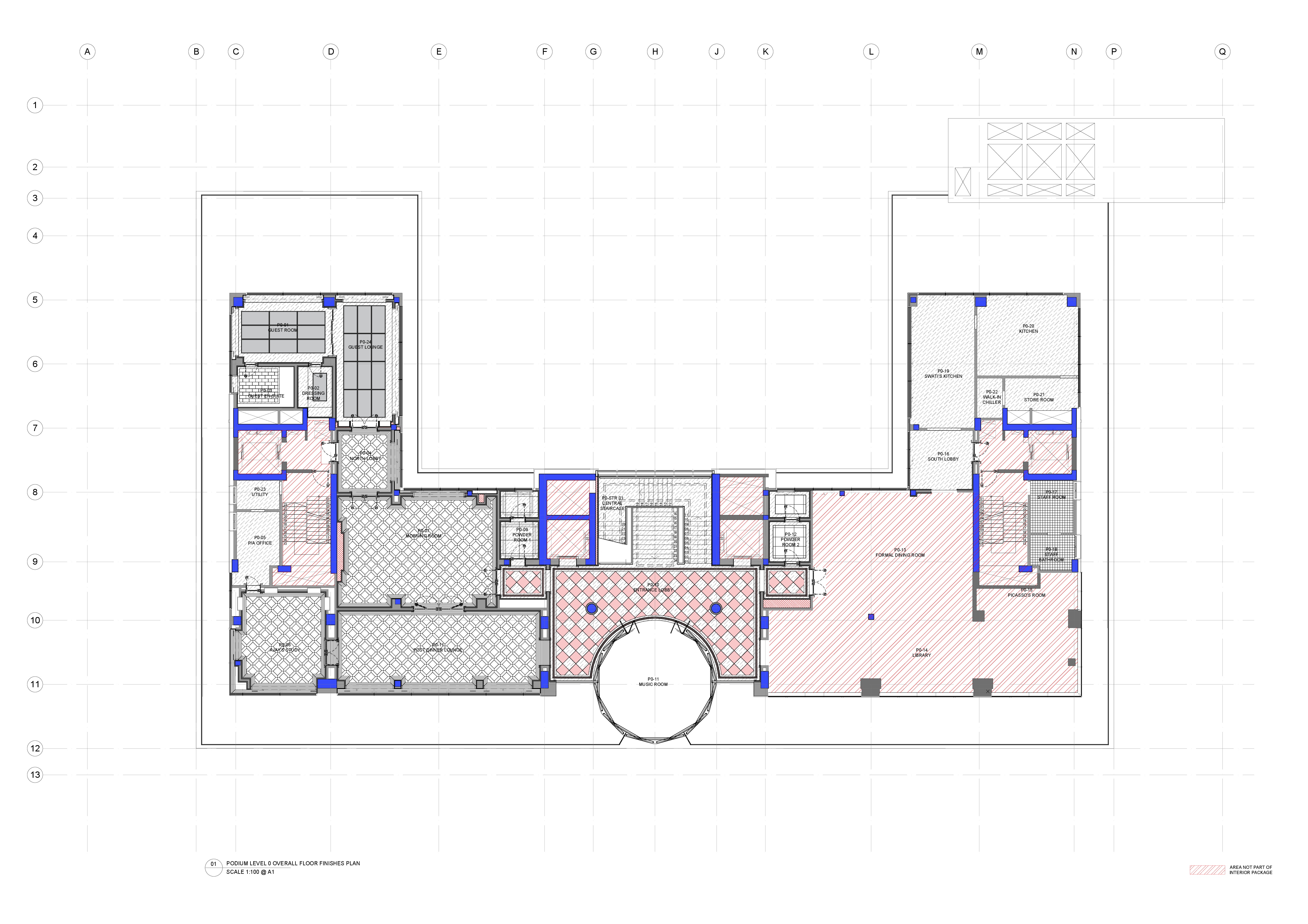
Regarded as the second largest private dwelling house in the world, comprising of 2,050 Sqm / 220,000 Sq ft split over 9 floors + roof terrace (3 below ground & 6 above ground) located in Mumbai, India. It was designed by an acclaimed London based interior design practice.
Studio DMA collaborated with one of Dubai’s top luxury interior designers initially to take the original concept interior design by one of London based interior design practices and refine the concept of key areas to ease buildability, coordination with other consultants and services while remaining sympathetic to the original design, features and concept.
